Сначала популярные
#PROP_TITLE#
:
#PROP_VALUE#
Скрытые двери в интерьере
Стильное и современное решение для интерьера, позволяющее создать эффект цельной стены без видимых коробов и наличников.Они идеально подходят для минималистичных и современных пространств, органично сливаясь с отделкой стен – под покраску, обои или декоративные панели.
Технические характеристики дверей "Под покраску"
Высота полотна: до 2500 мм (кроме INVISIBLE 1)Ширина: от 200 мм до 1100 мм
Варианты цвета алюминиевой кромки: хром, чёрный, шампань
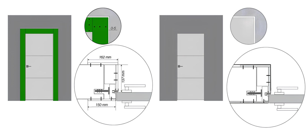
Двери INVISIBLE комплектуются скрытым алюминиевым коробом. Также нужно комплектовать скрытыми петлями и замками, возможно фабричная врезка фурнитуры.
Двери INVISIBLE (скрытые двери) предназначены под покраску или оклеивание обоями в цвет стен. Модельный ряд включает варианты исполнения:
INVISIBLE 1 – гладкое щитовое полотно в грунте, без алюминиевой кромки,
INVISIBLE 2 – гладкое щитовое полотно в грунте, с алюминиевой кромкой с 2-х сторон,
INVISIBLE 3 – гладкое щитовое полотно в грунте, с алюминиевой кромкой с 4-х сторон.
INVISIBLE 4 (внутреннего открывания) – гладкое щитовое полотно в грунте, с алюминиевой кромкой с 3-х сторон. Комплектуется реверсивным скрытым коробом.
Дверь внутреннего открывания необходимо комплектовать скрытыми реверсивными петлями, а также замком. Возможна фабричная врезка фурнитуры.
Модель имеет сторонность – обязательно указывать при заказе в примечании к полотну и к коробу:


Подготовка дверного проема:
Установку скрытых дверей следует запланировать еще на начальном этапе ремонта, так как короб монтируется во время строительства, до отделочных работ. Само полотно устанавливается на завершающей стадии, что дает возможность заранее выбрать подходящую отделку.
Короб скрытой двери монтируется заподлицо с поверхностью стены, создавая ровную и незаметную конструкцию. После этого фиксируем стоевые элементы в проеме, обеспечивая надежное крепление. Затем навешиваем дверное полотно и выполняем его точную регулировку в нескольких плоскостях с помощью скрытых петель. На финальном этапе тщательно выставляем зазоры между полотном и коробом, чтобы обеспечить плавный ход двери и идеальную подгонку к стене.
Облицовка:
После полного застывания монтажной пены аккуратно срезаем ее излишки, создавая ровную поверхность. Далее можно переходить к отделочным работам. В зависимости от выбранного способа оформления, лицевую часть конструкции либо оштукатуривают, обеспечивая гладкость и прочность покрытия, либо обшивают гипсокартоном, создавая основу для дальнейшей декоративной отделки, такой как покраска, оклейка обоями или нанесение декоративных покрытий.
При расчете размеров деталей допускается зазор не более 5 мм. На боковых элементах, примыкающих к дверной коробке, при необходимости выполняется углубление, чтобы деталь плотно вошла в паз скрытого короба. С тыльной стороны, для надежной фиксации обрамляющих проем деталей, можно закрепить брус, компенсирующий разницу в расстоянии. Затем заднюю часть проема обшивают гипсокартоном, при этом паз на скрытом коробе рассчитан под лист толщиной 9 мм. После облицовки стыки шпаклюются гипсовой смесью. Чтобы предотвратить образование трещин по периметру проема, рекомендуется дополнительно укрепить швы стеклохолстом.






